成功案例
400-800-9259
有疑惑,請問有什么可以幫您?
浙江三可熱交換系統有限公司
來源:必旺智能2025-05-21
公司介紹:
浙江三可熱交換系統有限公司,是一家專業從事換熱器、微通道換熱器和翅片管換熱器的研發、生產和銷售的公司。在紹興擁有一個7.2萬平方米的生產基地,在泰國擁有一個2.5萬平方米的生產基地。公司擁有強大的設計和開發能力,專門設計空調系統和熱管換熱系統的許多領域。涉及公交、電信、工商業制冷、冷凍庫、軌道交通、木材烘干、高壓變電站、航空航天等多個行業,深得客戶信賴。
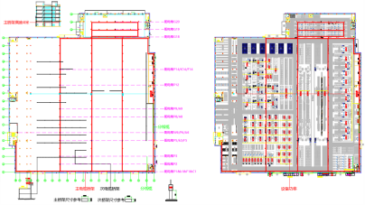
項目內容:
上海必旺工廠布局團隊于2024年10月進駐浙江三可熱交換系統有限公司,經過調研分析、功能規劃、詳細布局、輔助設施等步驟,至2025年1月完成整體布局規劃,規劃方案貫穿精益思想,實現流動化生產布局。
功能區域確定:

輔助設施規劃:

水電氣規劃:

項目成果:
進行了科學分區,使生產流程更順暢,產能提升約 30%。
針對多行業產品設計,優化了研發布局,加速產品迭代。
有力推動公司在各行業市場份額穩步增長。
成功案例
選擇上海必旺
開啟您的智能制造模式 ,加速企業數字化轉型
免費獲取方案報價
(1)_20230519.png)

400-800-9259

.jpg)

返回列表




