成功案例
有疑惑,請問有什么可以幫您?
上海同臣環保有限公司
來源:必旺智能2023-05-02
公司介紹:
同臣環保以“創新,解決環境問題,推動綠色發展”為使命,創于上海,源于同濟。公司先后被認定為國家高新技術企業、國家首批專精特新小巨人企業、上海市科技小巨人企業和AAA級守合同重信用企業。
我們立足于污水及污泥處理領域,提供疊螺式污泥脫水機、超高壓壓榨機、污泥低溫干化機、高效纖維濾布濾池和濕垃圾處理一體機等高新裝備和黑臭水體治理、污泥深度脫水與干化、熱解氣化、熱解碳化、好氧堆肥等污水污泥處理系統集成服務。與此同時公司積極探索新模式,業務領域延伸至煤炭、礦產、煤化工、化工等工業領域,為環保資源化事業添磚加瓦。
作為行業引跑的污水、污泥設備及技術服務提供商,同臣環保先后與同濟大學、德國達姆斯達特大學、瑞士ID能源及美國、荷蘭等國內外機構達成戰略合作,同時公司業務遍及全球109個國家和地區。
服務項目:工業園區規劃+打造智能化工廠
項目內容:
.png)
項目啟動會
以精益生產為基礎,工廠內所有資源都具智能,借助物聯網、IT技術,整個價值鏈的資源相互連接,通過云計算/大數據實現制造資源動態管理,讓生產現場“一 草一木”都“動”起來,設計與制造數字化融合,助力傳統工廠向智能化工廠轉型升級!
整體布局規劃方案:
先模塊化,再自動化;統籌規劃,分步實施
.png)
通過現場對新工廠內部所有區域重點尺寸進行測繪核實,確保新工廠成后期規劃的準確性,打下堅實的基礎。
.png)
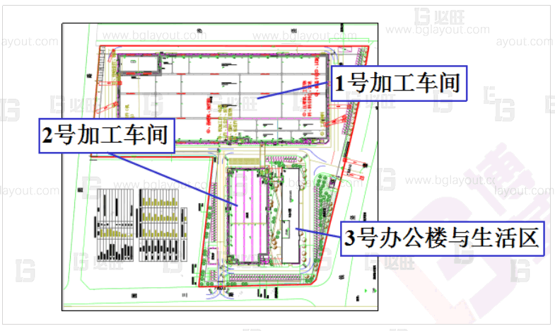
廠區功能劃分
.png)
車間布局圖
.png)
車間功能布局方案
.png)
生產物流流動方向
.png)
廠區原材料物流路線
.png)
員工停車場管理規劃
.png)
現場效果:
所有倉庫實現貨架多層存放管理;
確保倉庫物料的空間利用;
制作工具驗收單,明確工具壽命,統一編號,統一管理。
.png)
按照工具的特征,進行專業工裝引進或者設計,進行檢查并培訓學習
.png)
按照倉庫6S管理標準,對倉庫所有物品進行分類與定置,設立庫位看板,帳物一致率提升
.png)
按照科學的方法和數據,進行一個流的模式進行規劃,各種定位、標識更加科學、順暢
.png)
工業園區效果圖:


項目效益:
生產產能提高50%;
計劃排產準確率提高30%;
庫存物料賬實一致性達到96%以上;
庫存物料周轉率提升約20%;
客戶品質訴求響應時間減少95%;
生產周期縮短20%;
書面紙質作業消除50%。
成功案例
選擇上海必旺
開啟您的智能制造模式 ,加速企業數字化轉型
免費獲取方案報價
(1)_20230519.png)

400-800-9259

.jpg)

返回列表




