成功案例
400-800-9259
有疑惑,請問有什么可以幫您?
湖州酷吉能源科技有限公司
來源:必旺智能2025-03-18
公司介紹:
湖州酷吉能源科技有限公司成立于2022年3月,作為新興能源技術領域的創新型企業,其業務范圍涵蓋制冷設備研發、新能源技術開發、環保咨詢及智能制造等多個板塊。
項目內容:
隨著業務范圍拓展,原有廠房存在功能分區混亂、產線銜接不暢、研發測試空間不足等問題。上海必旺智能科技團隊為其提供服務,用專業規劃團隊,以"高效生產、綠色節能、智慧管理"為核心目標,對工廠布局進行全面優化升級,打造集研發、生產、測試于一體的現代化智能基地。
功能區域確定:

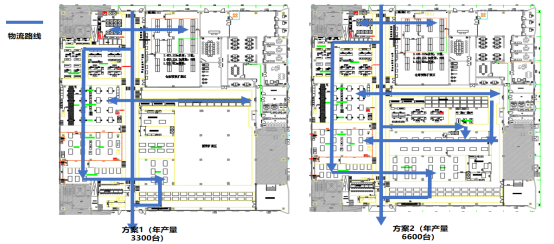
主物流規劃:

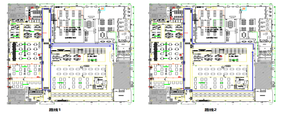
參觀路線規劃:

車間詳細規劃:

物流規劃:

項目成果:
- 整機組裝采用無動力滾筒裝配線,提高傳遞效率與降低作業強度
- 重量部件采用KBK行吊,降低作業強度,提高作業效率
- 按工藝流程布局,減少搬運距離,結合生產線改善,減少了搬運的頻次
- 電控箱改善作業臺及改變作業方式,估算效率可升10%-15%。
- 車間按2組線方式布局,在訂單變化時可靈活按需開線,減少能耗
- 作業臺規劃可四周作業,可按生產需求,靈活調配作業人員,提高生產柔性。
成功案例
選擇上海必旺
開啟您的智能制造模式 ,加速企業數字化轉型
免費獲取方案報價
(1)_20230519.png)

400-800-9259

.jpg)

返回列表




